联系人:薛经理
销售电话:15689257565
销售QQ:
公司地址:山东省潍坊市高新区光电路155号光电产业加速器(一期)
15689257565
PRODUCT CENTER
联系人:薛经理
销售电话:15689257565
销售QQ:
公司地址:山东省潍坊市高新区光电路155号光电产业加速器(一期)






【产品简介】一、四层管式墒情监测整站产品简介四层管式墒情监测整站是用于监测土壤剖面温度、土壤剖面湿度、土壤剖面电导率的在线监测设备,集土壤温度、水分、电导率可广泛应用于智慧大棚、智慧果园、智慧···
一、四层管式墒情监测整站产品简介
四层管式墒情监测整站是用于监测土壤剖面温度、土壤剖面湿度、土壤剖面电导率的在线监测设备,集土壤温度、水分、电导率可广泛应用于智慧大棚、智慧果园、智慧灌溉等农业工程领域。
二、四层管式墒情监测整站产品参数
太阳能板功率:8W
太阳能板标准工作电压:DC5V
内置锂电池容量:5000mAh
传感器启动时间:60S
传感器供电电压:DC12V
传感器供电电流:22mA
传感器功耗:0.26W
通讯方式:485 Modbus RTU协议
测量参数:可同时测量4层(10层以下可定制层数)
测量原理:通过测量土壤介电常数建立数学模型,设计螺旋式测量电极测量土壤体积含水率数据。
参数 | 测量范围 | 精度 | 分辨率 | 单位 |
土壤温度 | -30~70℃ | ±0.3(-10~70℃) | 0.01 | ℃ |
土壤湿度 | 0~100% | ±3%(壤土) 高有机质土壤(土壤有机碳含量>12%)高粘粒含量土壤(粘粒含量>45%)由于其介电弛豫特性,可能需要针对特定土壤类型进行标定 | 0.1% | --- |
土壤电导率 | 0~20000us/cm | ±3%(0~10000us/cm) ±5%(全量程) | 1 | us/cm |
三、四层管式墒情监测整站优势与特点
★单个土壤管式传感器可以同时测量多个深度的土壤参数,监测深度可定制(小于1M)。
★传感器采用低功耗设计,功耗低至0.26W,适用于野外长期无人监测。
★传感器每层都可以独立测量温度、湿度、电导率参数。
★传感器外壳采用进口PC材质,强度高、耐腐蚀、对环境无污染。
★传感器防水等级达到IP67,应对长期室外监测。
★传感器测量一定区域内的平均湿度,弥补了单点测量具有局限性的问题。
★传感器采用自主设计的螺旋式测量电极,改善传感器与土壤之间的接触,尽量避免空气间隙造成的测量误差。
四、四层管式墒情监测整站使用注意事项
a.传感器使用应严格按照安装使用说明书进行。
b.多个传感器同时工作时,必须间隔3米以上距离。
c.传感器测量原理限制,传感器测量地为中心半径3米范围内不应有电磁线缆和强磁辐射干扰,避免造成传感器测量的巨大误差和损坏。
d.传感器的安装环境应该符合传感器的测量范围,避免超量程等不规范行为。
e.传感器安装应避开强酸强碱、重油污重金属环境进行。
f.传感器为土壤测量传感器,禁止使用本传感器对其他物质进行测量。
g.传感器安装环境不能有强振动。
h.传感器不能有过强外力作用。
i.禁止拆卸,私自拆卸视为不合规行为,后续将不再提供任何服务行为。
五、四层管式墒情监测整站结构图

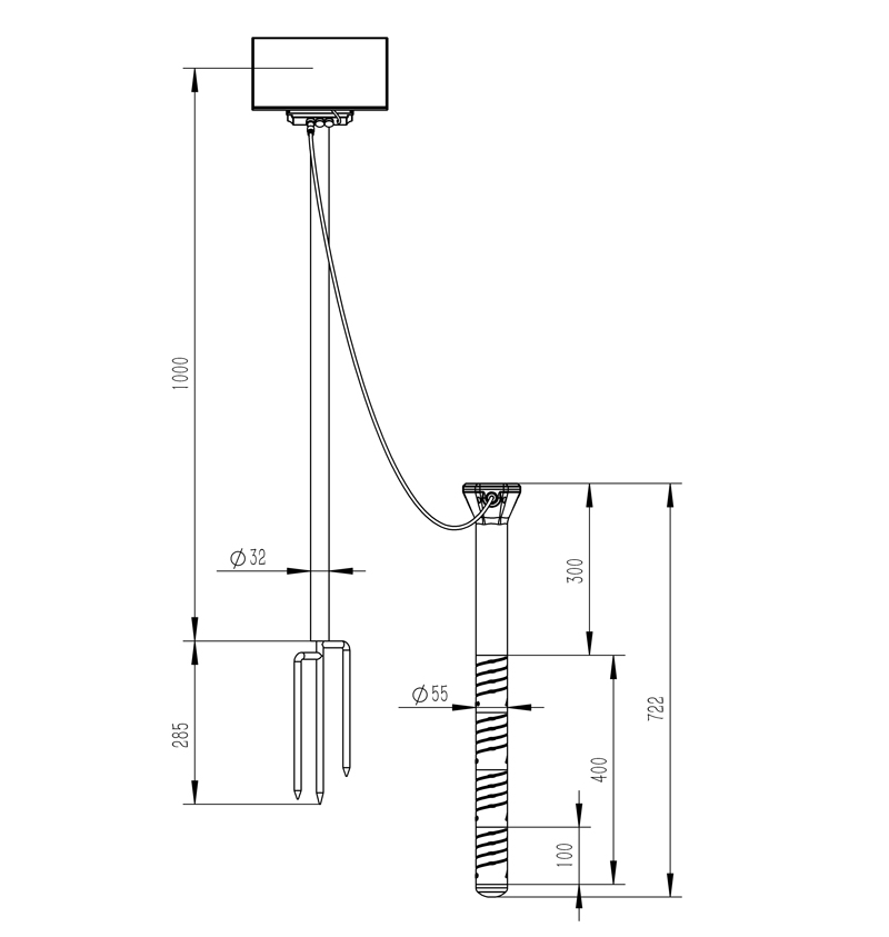
六、四层管式墒情监测整站尺寸图

七、四层管式墒情监测整站安装方法
钻孔法:
1.取土钻钻头、手柄、支杆,完成后将取土钻竖直于地面,双手紧握手柄顺时针下压慢速转动。(注意:不要太用力,务必慢速多转几圈,防止钻头跑偏至孔洞打歪)

2.将取土钻从孔洞中取出,放到盆子里,用工具把钻出的土收集到盆子里以用来和泥浆。(注意:第一钻土因为杂质过多,不做收集)

3.反复持续上述打孔、取土,并在此过程中尝试性地将传感器轻放入孔洞中(请勿将设备用力触底),以测试孔洞的深度是否合适;若有卡顿,则使用取土钻修正,保证传感器放入、取出都比较顺畅;直到孔深与传感器所标识的安装位置齐平(零刻度线),打孔完成。
4.挑出盆中土壤杂质,石子、根、不容易溶解的土块等。将土壤搓细,以便和泥浆。
5.倒入适量水,充分搅拌至粘稠状;壤土泥浆一般不能稠于“芝麻酱”状。

6.将泥浆慢慢倒入孔洞,大概到孔洞1/2的位置;可根据实际情况酌情增减。

7.将传感器慢慢放入孔洞中,顺时针转动并下压,速度过快可能会导致气泡不能被完全排出。(注意:再转动下压的过程中不可以上拔传感器,防止气体再次吸入孔中)
8.当传感器安装到正确的深度后,设备周围会溢出一些泥浆,灌浆完成;此时传感器安装深度与洞口齐平。(注意:将传感器周围3CM以外多余的泥浆清除,防止结块影响水分下渗)
掩埋法:使用镐子挖一个埋传感器的深坑,和泥浆将传感器掩埋,处理细节参照钻孔法。














土壤墒情监测站是现代农业生产的关键设施,它通过自动化方式实时获取土壤水分信息,为农业灌溉和水资源管理···
车载气象站是一种安装在移动车辆上的气象观测设备。它能够实时采集所处位置的温度、湿度、气压、风速和风向···
雨量监测站是现代水文气象观测网络的关键组成。其核心任务是精准、自动地测量自然界的降水数据。这些数据是···
手持气象站正逐渐走进户外工作与日常生活的视野。这种便携设备将传统气象观测的复杂系统浓缩于掌心大小,通···
